Bought with Sutton Group-West Coast Realty
For more information regarding the value of a property, please contact us for a free consultation.
6920 204 ST Langley, BC V2Y 1P8
Want to know what your home might be worth? Contact us for a FREE valuation!

Our team is ready to help you sell your home for the highest possible price ASAP
Key Details
Property Type Vacant Land
Listing Status Sold
Purchase Type For Sale
MLS Listing ID R2856093
Sold Date 03/13/24
HOA Y/N No
Lot Size 1.490 Acres
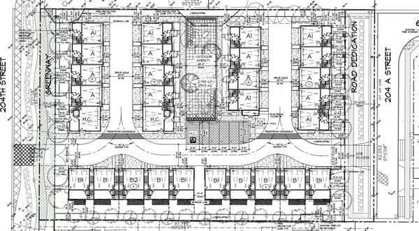
Property Description
1.49 acre 29 unit proposed townhouse site with application to rezone folder RZ100684 and project #08-14-0233 with application submitted to Township of Langley on Sept 14,2021. The units are 3 bedroom + den/flex room +3 bathroom + double garage with roof top decks. Services near. Barnett Dembek Architects has application and prepared to continue with buyer. FAR 49,232 sqft, Site coverage is 32%, 48.33 UPH Amazing location & potential construction timing that has 3rd reading on May 29, 2023..
Location
Province BC
Community Willoughby Heights
Area Langley
Zoning SR-2
Exterior
Utilities Available Sanitary Sewer Nearby, Storm Sewer Nearby, Electricity Nearby, Natural Gas Nearby, Phone Nearby, Cable Available
View Y/N No
Exposure West
Building
Water Public
Others
Restrictions Building,Encroachment
Ownership Freehold NonStrata
Read Less

GET MORE INFORMATION




